Projekt domu w Olesinie

Dom śródziemnomorski to styl architektoniczny inspirowany krajami basenu Morza Śródziemnego, takimi jak Hiszpania, Włochy, Grecja. Charakteryzuje się ciepłą, przytulną atmosferą, łącząc elegancję z funkcjonalnością, wykorzystując naturalne materiały i duże przestrzenie.

Niniejszy projekt nawiązuje do kompozycji klasycznej. Objawia się ona poprzez symetryczny front oraz historyzujące detale. Bryła dwukondygnacyjna osadzona na kamiennym postumencie zachowuje proporcje budynków z dawnych lat. Całość zwieńcza dach wielospadowy, który nie jest widoczny z bliskiej perspektywy. Jego obecność zdradzają szerokie, gzymsowe okapy oraz ozdobne frontony.

Budynek został osadzony w polskich realiach, co wymusza zachowanie odpowiedniej termoizolacyjności ścian. Zrezygnowano więc z elewacji kamiennych na rzecz tynków w kolorystyce zgodnej z ideą domów śródziemnomorskich. Zastosowano barwy ciepłe i pastelowe. Drewniane okiennice przełamano zielenią oliwkową, która nawiązuje do tamtejszej roślinności. Od strony ogrodu do budynku dostawiono naziemny taras otoczony kamiennym murkiem. Na tarasie postawiono stalową, kutą pergolę, pod którą załamują się promienie słoneczne dając wytchnienie domownikom biesiadującym przy kamiennym stole. Posadzkę wykończono ceglaną terakotą, a w narożniku ustawiono cortenowe palenisko.

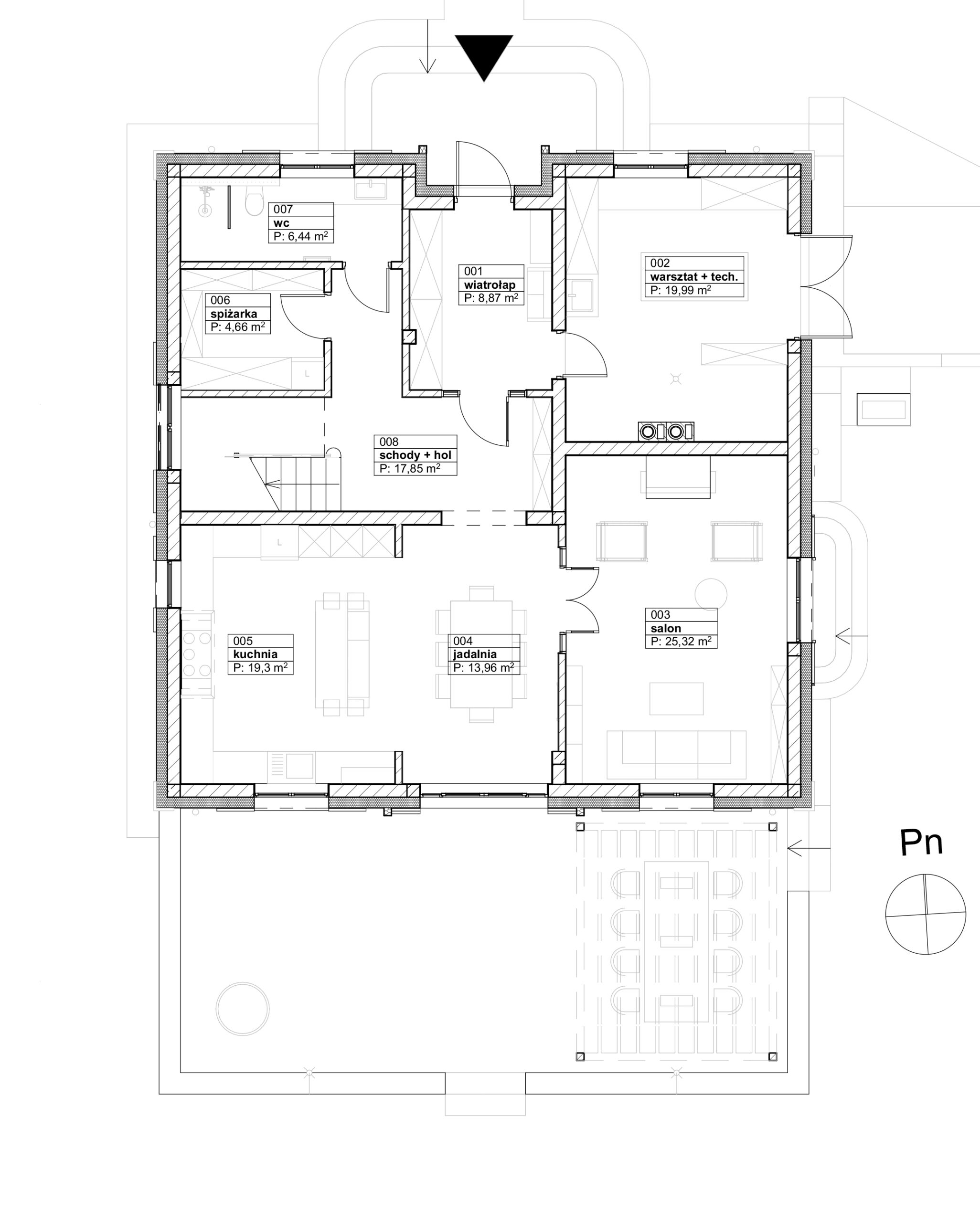
Rzut parteru nawiązuje do klasycznej formy budynku. Główną komunikację oparto na symetrii, co pozwala na czytelny podział pomieszczeń. Układ funkcjonalny jest spersonalizowany pod domowników i zdradza ich indywidualne podejście do życia. Serce domu stanowi kuchnia połączona z jadalnią. Natomiast salon to enklawa spokoju, miejsce do wypoczynku przy kominku, czytania i odcięcia się od domowego gwaru.

Trójbiegowe schody prowadzą na piętro do korytarza rozdzielającego komunikację do poszczególnych pomieszczeń. Na planie wyróżnia się duża łazienka stanowiąca pokój kąpielowy, oraz przestronny pokój, który ma możliwość przyszłego podziału na dwa pomieszczenia.

Z pewnością dom śródziemnomorski to projekt wyjątkowy, odbiegający od dzisiejszych tendencji tworzenia domów. Takie realizacje sprawiają, że nasza pracownia nie zamyka się na określony styl i gotowa jest na wszelkie wyzwania.

Projekt domu w Olesinie

  • Miejscowość: Olesin
  • Rok projektu: 2024
  • Typ: Dom śródziemnomorski
  • Powierzchnia użytkowa: 220 m²
  • Cechy szczególne: Dom piętrowy, klasyczny z elementami dekoracyjnymi
  • Autorzy:
  • Architektura: Artur Tomaszek
  • Konstrukcja: Jacek Kurzyna
  • Instalacje sanitarne: Krzysztof Wiejak
  • Instalacje elektryczne: Sławomir Janiga