Projekt domu w Magdalence

Projekt w Magdalence to nowoczesny, parterowy dom jednorodzinny o prostej, eleganckiej bryle. Jasna elewacja dobrze kontrastuje z ciemnym kopertowym dachem oraz drewnianymi akcentami, takimi jak brama garażowa i elementy lamel przy wejściu. Pudełkowa bryła garażu i strefy wejściowej wysunięta została przed lico budynku tworząc dwie płaszczyzny elewacji. Całość harmonijnie wpisuje się w zielone otoczenie dzielnicy, tworząc spokojną i przyjazną przestrzeń do życia.

Elewacja ogrodowa charakteryzuje się rozłożystą bryłą o powielonej strukturze dwóch płaszczyzn elewacji. Duże przeszklenia otwierają wnętrze na ogród i zapewniają dużo naturalnego światła. Zaprojektowany przy domu taras otoczono ramą nawiązującą do strefy wejściowej. Stanowi on przedłużenie salonu. Szerokie okapy wzmacniają horyzontalne proporcje budynku, którego dach skrywa przestrzeń strychu do adaptacji. Stonowaną kolorystkę elewacji wzmacniają ciemne ościeża okienne oraz symboliczna wstawka drewniana.

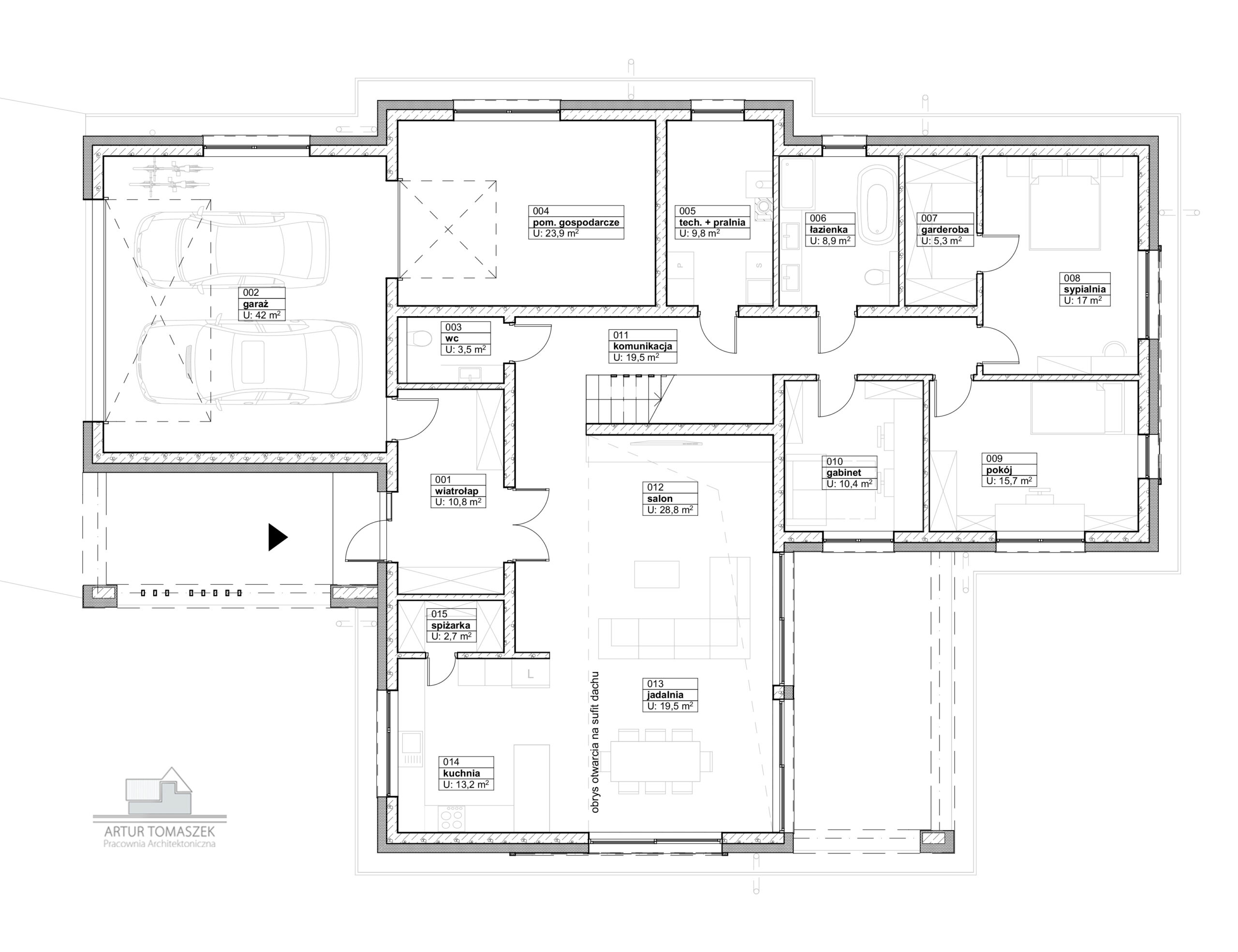
Rzut parteru

Strefa wejściowa domu prowadzi poprzez zadaszony podcień do przestronnego wiatrołapu. Umożliwia on swobodną zmianę ubrań dla domowników jak i gości. Wiatrołap posiada przejście do dwustanowiskowego garażu wraz z pomieszczeniem gospodarczym. Poprzez dwuskrzydłowe drzwi wiatrołap otwiera się na salon (strefę wypoczynkową z narożnikiem i telewizorem). W głębi znajduje się strefa jadalniana. Część dzienna otwarta jest na dwie kondygnacje po sufit dachu. W narożu zaprojektowano ustawną kuchnię na planie kwadratu. Posiada ona strefę wysokiej zabudowy, blat ze zlewem i kuchenką oraz domykający układ półwysep. Przy wysokiej zabudowie znajduje się wejście do spiżarni. Z drugiej strony salonu znajduje się przejście do wc, zapewniające komfort użytkowania. Następnie poprzez korytarz zapewniono dostęp do pomieszczenia technicznego z pralnią oraz ogólnodostępnej łazienki z wanną i prysznicem. Strefę nocną stanowi sypialnia rodziców z prywatną garderobą, gabinet oraz pokój dziecka. W holu zaprojektowano również jednobiegowe schody na strych.

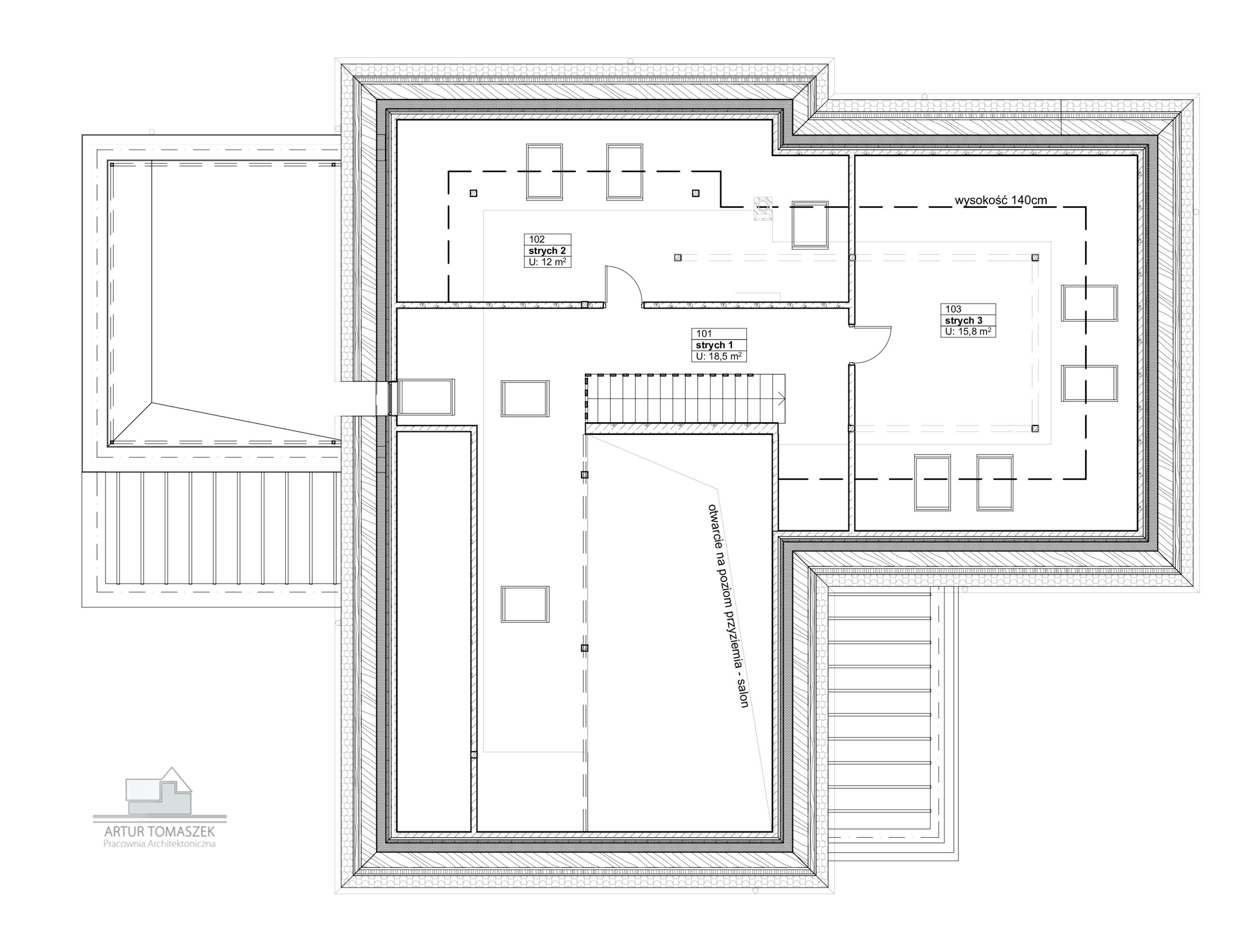
Rzut strychu

Strych stanowi przestrzeń do adaptacji na poddasze. Zaplanowano dwa wydzielone pomieszczenia doświetlone oknami połaciowymi. Pozostała część strychu to przestrzeń otwarta stanowiąca przedłużenie pionowe salonu. Może ona zostać wykorzystana jako przyszły kącik kawowy, galeria pamiątek lub strefa ćwiczeń. Poprzez łamane okno dachowe możliwe jest wyjście na dach płaski nad częścią garażową.

Projekt domu w Magdalence

  • Miejscowość: Magdalenka
  • Rok projektu: 2021
  • Typ: Dom parterowy z poddaszem do adaptacji
  • Powierzchnia użytkowa: 230 + 45 m²
  • Cechy szczególne: Salon otwarty na dwie kondygnacje
  • Autorzy:
  • Architektura: Artur Tomaszek
  • Konstrukcja: Hubert Niedziałek
  • Instalacje sanitarne: Krzysztof Wiejak
  • Instalacje elektryczne: Sławomir Janiga