Projekt domu w Nasutowie

Dom zaprojektowano na planie litery T utworzonej z połączenia dwóch brył: części mieszkalnej w białym tynku i części garażowej ciemnoszarej. Strefa wejściowa stanowi splot obu brył wycinając fragment elewacji pod cofnięte zadaszenie wejścia. Bazokapowy dach to nowoczesny akcent podkreślający geometryczną formę budynku.

Od ogrodu bryła domu rozbudowana jest o wykusz – lukarną biegnącą niemal przez całą ścianę budynku. W ten sposób zapewniono większą wysokość pomieszczeń na poddaszu, co przekłada się na ich pełne wykorzystanie funkcjonalne (częściowa eliminacja skosów). Na parterze poprzez duże okno salonowe możliwe jest wyjście na taras. Stanowi on żelbetową strukturę opartą na słupach. Część tarasu jest zadaszona, a część wykończona w ażurowych belkach (łamaczach światła).

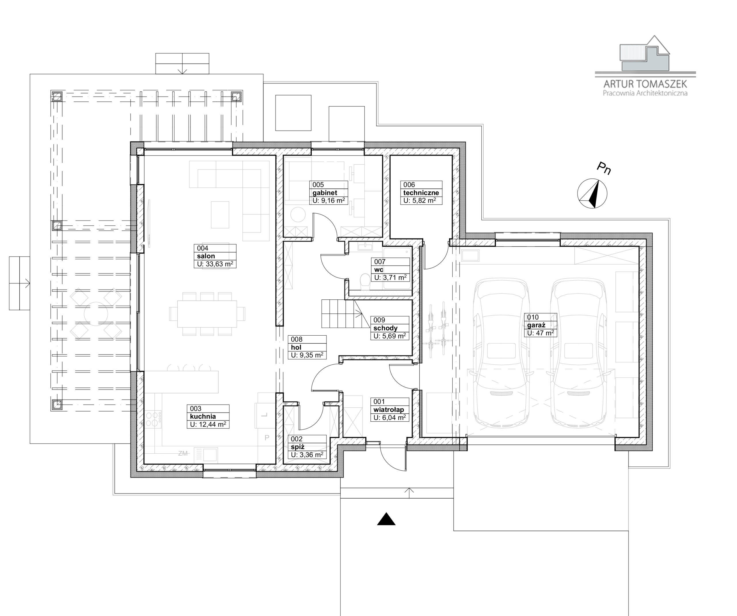
Rzut przyziemia

Program funkcjonalny parteru zaczyna się od wiatrołapu, z którego rozdzielono komunikację do garażu oraz głównego holu. Garaż stanowi wydzieloną strefę połączoną z pomieszczeniem technicznym. Z holu zapewniono komunikację do wszystkich pomieszczeń parteru budynku. Od południowego-zachodu zlokalizowano strefę dzienną, na którą składa się kuchnia, salon z jadalnią oraz taras zewnętrzny. W kuchni wydzielono miejsce pod spiżarkę. Od północy umieszczono gabinet, wc oraz schody na poddasze.

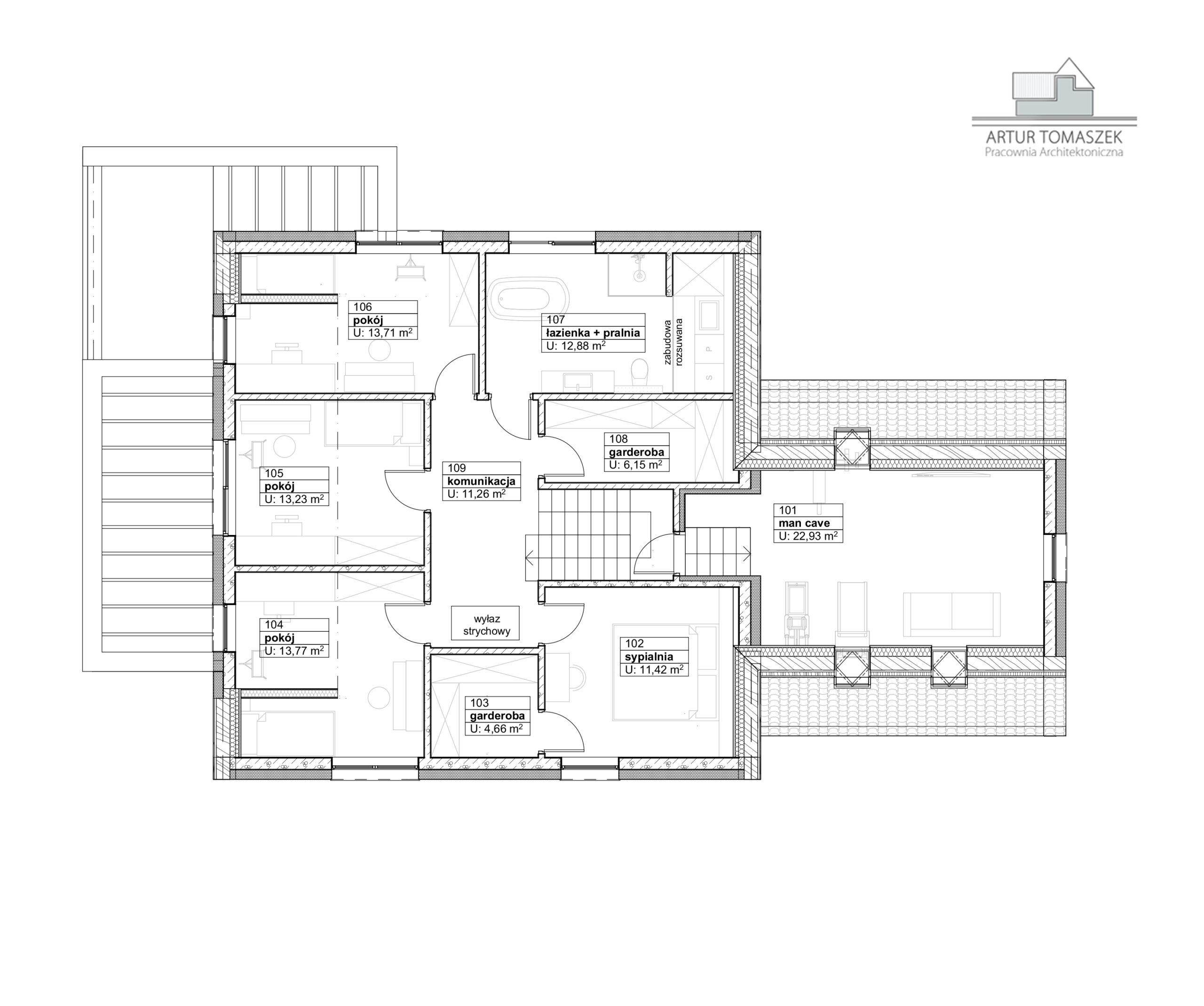
Rzut poddasza

Poddasze stanowi strefę prywatną domu. Główne pomieszczenia to trzy pokoje dzieci, sypialnia rodziców z garderobą, ogólnodostępna garderoba oraz łazienka z pralnią. Nad garażem utworzono pomieszczenie typu „man cave” – gabinetowo – multimedialne. Wydzielono też powierzchnię do ćwiczeń. Dostęp do pomieszczenia poprzez trójbiegową klatkę schodową. W ostrym skosie dachu zaprojektowano strych dostępny wyłazem z holu poddasza. Rzut domu oparty na kwadracie pozwala rozlokować pomieszczenia po jego obwodzie, tworząc w środku przyjazną komunikację, bez efektu długiego korytarza.

Boczna elewacja skrywa poszerzenie tarasu na planie litery „L”. Narożne usytuowanie zadaszenia chroni przeszklone pomieszczenia dzienne przed uporczywym letnim słońcem, eliminując ich przegrzewanie się. Niewielki wysięg zadaszeń pozwala natomiast na dobre doświetlenie w okresie wiosenno – jesiennym, kiedy promienie słoneczne wpadają do domu pod znacznie mniejszym kątem.

Projekt domu w Nasutowie

  • Miejscowość: Nasutów
  • Rok projektu: 2021
  • Typ: Dom z garażem i rozległym tarasem
  • Powierzchnia użytkowa: 246 m²
  • Cechy szczególne: Lukarna pulpitowa
  • Autorzy:
  • Architektura: Artur Tomaszek
  • Konstrukcja: Hubert Niedziałek
  • Instalacje sanitarne: Krzysztof Wiejak
  • Instalacje elektryczne: Sławomir Janiga