Dom zaprojektowany na planie litery ,,L” pozwala uzyskać urozmaiconą i wystrefowaną bryłę. Budynek posiada dodatkowe skrzydło pozwalające oddzielić wizualnie i funkcjonalnie część dzienną od nocnej. W przedmiotowym projekcie skrzydło stanowi centrum domu – wydzielony przytulny salon z kuchnią.
Wyciągnięty z bryły domu taras został zestawiony z wejściem do domu. Kształt litery L pozwala oddzielić te przeplatające się ze sobą funkcje. Od południa zlokalizowano zarówno salon z tarasem jak i strefę wejściową. Odcięcie podkreśla wnęka wejściowa oraz zadaszony taras.
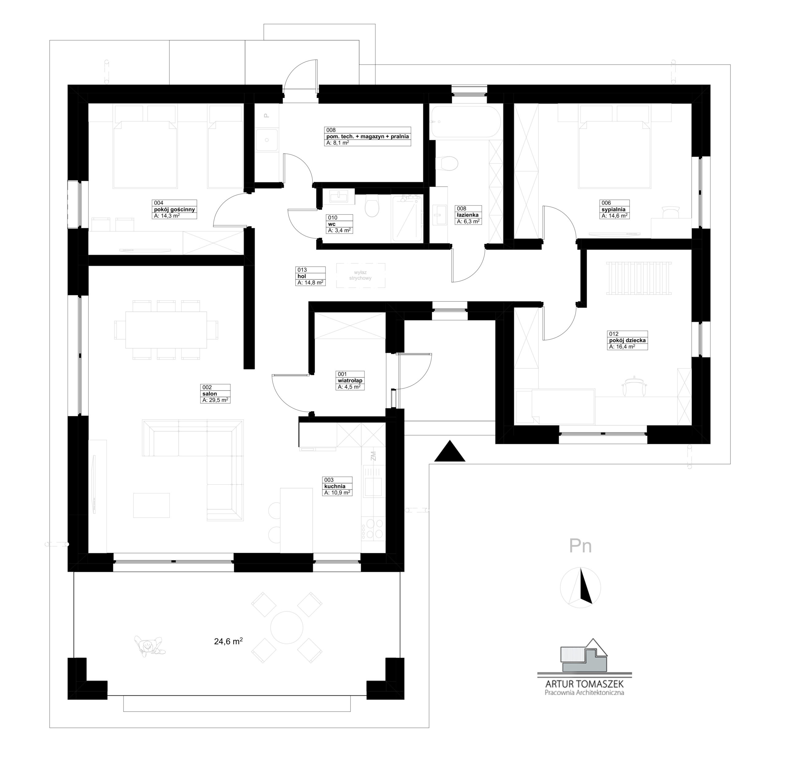
Plan funkcjonalny budynku to oprócz kuchni z salonem, ustawna sypialnia, pokój dziecka oraz pokój gościnny. Całość uzupełnia wc, łazienka oraz pomieszczenie techniczne z pralnią.
Kompaktowy dom otwiera się na taras, będący przedłużeniem części dziennej. Salon podwaja swoją powierzchnię. Zaciera się granica między wnętrzem a zewnętrzem. Taras to kluczowy element uzupełniający potrzeby mieszkańców. To miejsce wypoczynku, biesiady, a często też pracy. Pozwala cieszyć się urokiem zabudowy jednorodzinnej, w której działka to prywatna i zielona przestrzeń.
Budynek wykończono w minimalistycznej, kontrastowej kolorystyce. Zrezygnowano z detalu bądź wstawek elewacyjnych. Sama forma budynku sprawia, że dom może się podobać.
ZDJĘCIA Z REALIZACJI
Tworzę dla Was stylowe, ponadczasowe, wygodne domy.