Projekt domu w Święcicach

Niniejszy projekt to dom wielopokoleniowy składający się z dwóch lokali: Pierwszy, będący dwukondygnacyjną częścią, stanowi przestrzeń młodego małżeństwa z dziećmi, natomiast drugi to część parterowa z osobnym wejściem przeznaczona dla seniorów. Zaplanowanego podziału nie widać na frontowej elewacji domu. Przypomina on zwykły budynek mieszkalny jednorodzinny. Wejście do drugiego lokalu zaprojektowano bowiem od elewacji bocznej, zrywając z utartym schematem domów bliźniaczych czy szeregowych.

Parterowa część senioratki pozbawiona jest dodatkowych elementów elewacyjnych. Wejście osłonięte jest szerokim okapem jednolitego dachu o niewielkim nachyleniu. Przy oknie salonowym zaprojektowano naziemny taras. Bryły budynków przenikają się, a zarazem odznaczają sugerując podział funkcji. Zestawienie białej kolorystyki z ciemną to wzmocnienie omawianego efektu.

Do piętrowej części lokalu, zaprojektowanego dla małżeństwa z dziećmi, przynależy zadaszony taras. Stanowi on kontynuację wysuniętej bryły budynku od strony senioratki. Boczna ściana wydziela granicę – podział tarasu i zachowuje prywatność. Układ okien wynika bezpośrednio z programu funkcjonalnego. Ich wielkość i podział determinuje ustawność przestrzeni we wnętrzach. Brak rytmu elewacyjnego uzupełniają drewnopodobne lamele.

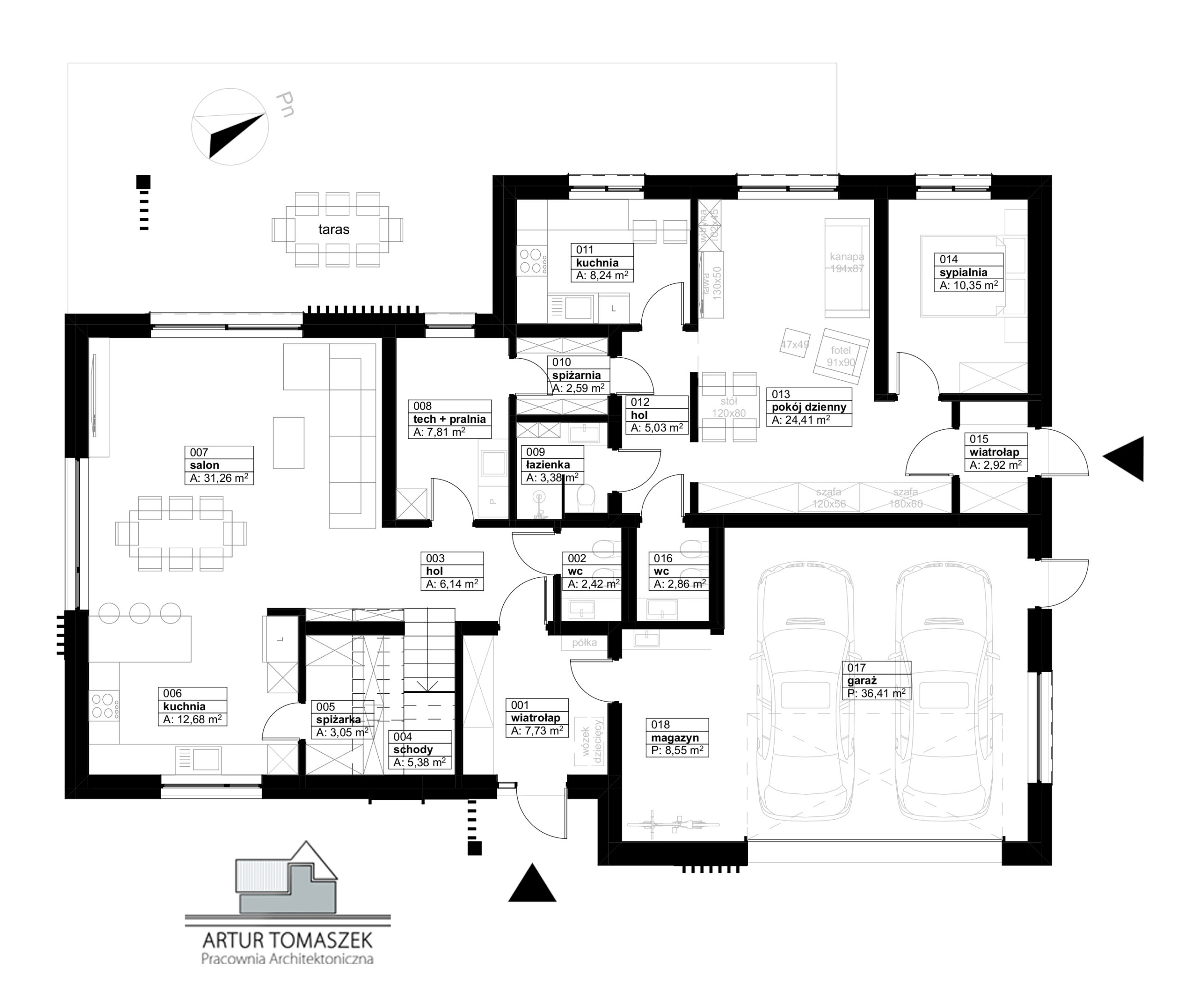
Rzut przyziemia

Układ funkcjonalny domu (głównego lokalu) zaczyna się od podcienia ze strefą wejściową, który prowadzi do wiatrołapu. Wiatrołap zaprojektowano jako miejsce do przebierania zarówno dla osób wchodzących z zewnątrz jak i z pomieszczenia garażu. Wydzielono w nim miejsce na wózek dziecięcy, półkę na buty oraz szafę wraz z zintegrowanym siedziskiem. Dwustanowiskowy garaż posiada wnękę magazynową do przechowywania rowerów. Zaprojektowano z niego dodatkowe wyjście na zewnątrz domu.

Z wiatrołapu widok otwiera się na hol. Łączy on dwie części domu: strefę dzienną i schody do strefy nocnej. W części dziennej zaprojektowano salon z jadalnią i kuchnię ze spiżarką. Powierzchnię spiżarki powiększono o przestrzeń pod schodami. Strefę dzienną uzupełnia wc oraz pomieszczenie techniczne z pralnią. Pralnia to przestrzeń wspólna dla obu lokali. Jest ona dostępna dla drugiego lokalu poprzez spiżarnię. Senioratka to kompaktowa przestrzeń na którą składa się pokój dzienny, wydzielona kuchnia, wc, łazienka oraz sypialnia. Osobne, boczne wejście wydzielono małym wiatrołapem – śluzą termiczną.

Rzut piętra

Piętro stanowi przestrzeń dla pierwszego lokalu – strefy nocnej. Schody prowadzą na centralny hol rozprowadzający komunikację do poszczególnych pomieszczeń. Znajdziemy tutaj trzy pokoje dzieci, ogólnodostępną łazienkę z wanną i prysznicem. Strefę nocną zamyka przestronne master bedroom – królestwo rodziców. Składa się na nie sypialnia, przechodnia garderoba oraz prywatna łazienka.

Niniejszy projekt to przykład architektury dla rodziny wielopokoleniowej. Oba lokale zostały zaprojektowane w podziale funkcjonalnym i z zachowaniem prywatności. Nie ucierpiał przy tym wygląd zewnętrzny domu, który pozostaje w odbiorze jako dom jednorodzinny.

ZDJĘCIA Z REALIZACJI

Projekt domu w Święcicach

  • Miejscowość: Święcice
  • Rok projektu: 2022
  • Typ: Dom piętrowy z garażem
  • Powierzchnia użytkowa: 256 m²
  • Cechy szczególne: Dom wielopokoleniowy
  • Autorzy:
  • Architektura: Artur Tomaszek
  • Konstrukcja: Hubert Niedziałek
  • Instalacje sanitarne: Krzysztof Wiejak
  • Instalacje elektryczne: Sławomir Janiga